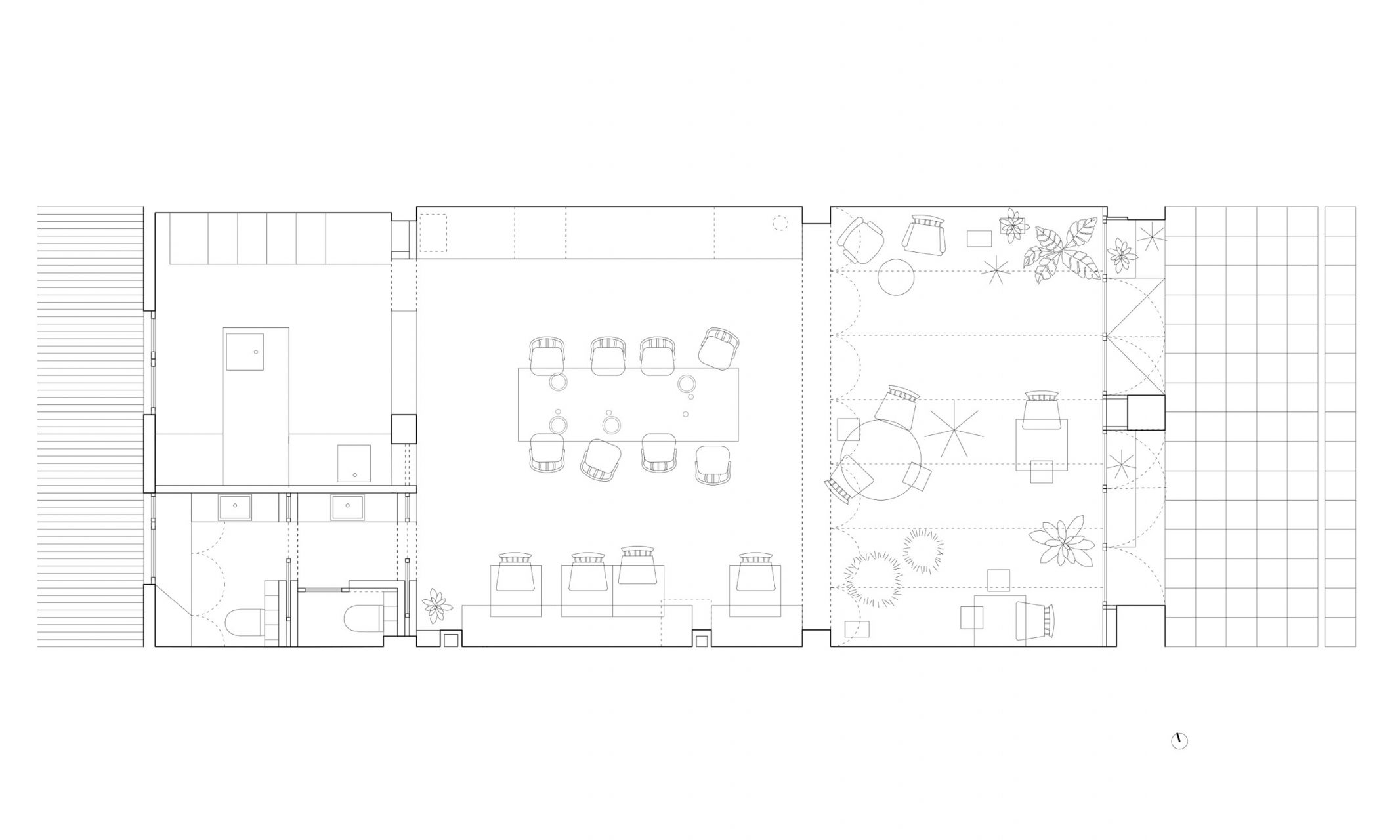
Un espai versàtil i diàfan amb una façana permeable que s’obre al carrer per a acollir diferents activitats. Un fragment de llar on gaudir de noves propostes gastronòmiques. Un jardí, un menjador i una cuina.
Aquest projecte es situa en un local ocupat durant molt temps per una gestoria per transformar-lo en un espai acollidor i lluminós on gaudir d’una cuina d’autor.
L’espai és un local entre mitgeres amb una façana a carrer i una altra ocupada parcialment per una nau industrial. En els dos casos s’actua buscant la màxima obertura per tal de que la llum natural s’escoli per tots els racons del nou cafè. La façana urbana és permeable i s’obre al carrer desdibuixant els seus límits. La seva secció s’amplia per a convertir-la en un espai habitable tant des de l’interior com des de l’exterior i permetre a la vegada l’obertura total de les fusteries de cadascun dels dos àmbits d’accés.
La intervenció descobreix l’estructura existent formada per dos pòrtics de formigó que estructuren l’espai en tres àmbits domèstics: el jardí, el menjador i la cuina.
Jardí
L’espai d’entrada és un coixí entre el carrer i l’espai central del cafè. El sostre tèxtil de voltes invertides ens transporta a un envelat, un espai festiu interior, o una pèrgola, un cobert exterior que forma part d’un jardí. El disseny de mobiliari de diferents dimensions i materials, i la incorporació de vegetació donen lloc a una zona distesa, on els més petits troben també els seu espai de joc. Les qualitats interiors i exteriors de l’espai estan regulades per les grans fusteries metàl·liques d’entrada que, a la vegada, son bancs i son taula.
Menjador
L’espai central està protagonitzat per una taula de grans dimensions, un espai on reunir-se i compartir. A tocar d’una mitgera l’acompanya un banc corregut amb tauletes que donen l’opció a gaudir d’una zona més íntima. L’altra mitgera conté un moble-taulell de servei i emmagatzematge.
Cuina
La tercera crugia conté la cuina oberta a l’espai central, els banys i les instal·lacions. El pòrtic de formigó, es completa amb blocs del mateix material, i amb fusteries que transporten la màxima llum possible a l’espai central.
Transformació d'una antiga gestoria en un cafè a Valls