3 en 1. Una altra manera d’habitar el casc antic de Tarragona. Una casa entre mitgeres que pot acollir des de 3 petites unitats de convivència a una gran família.
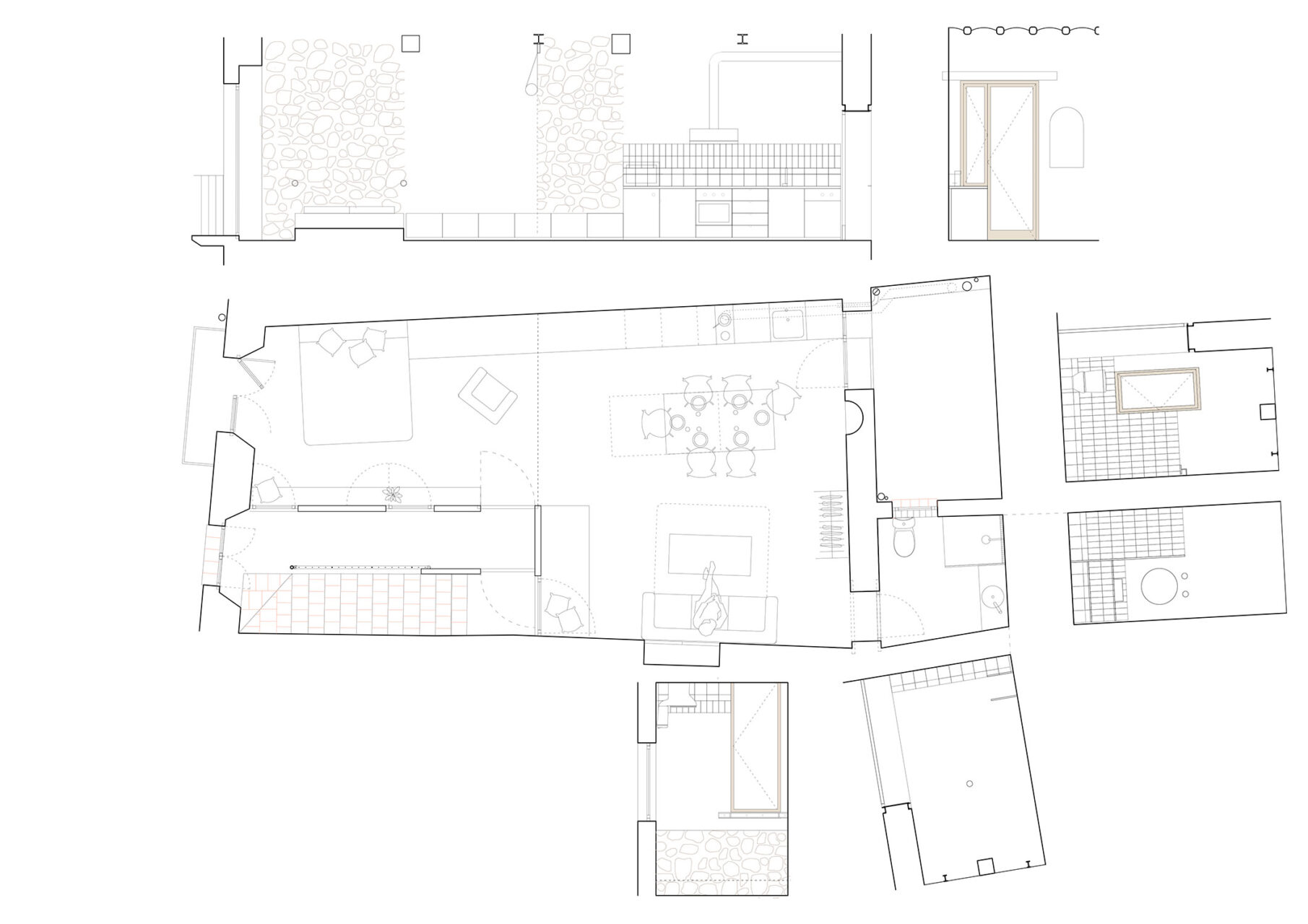
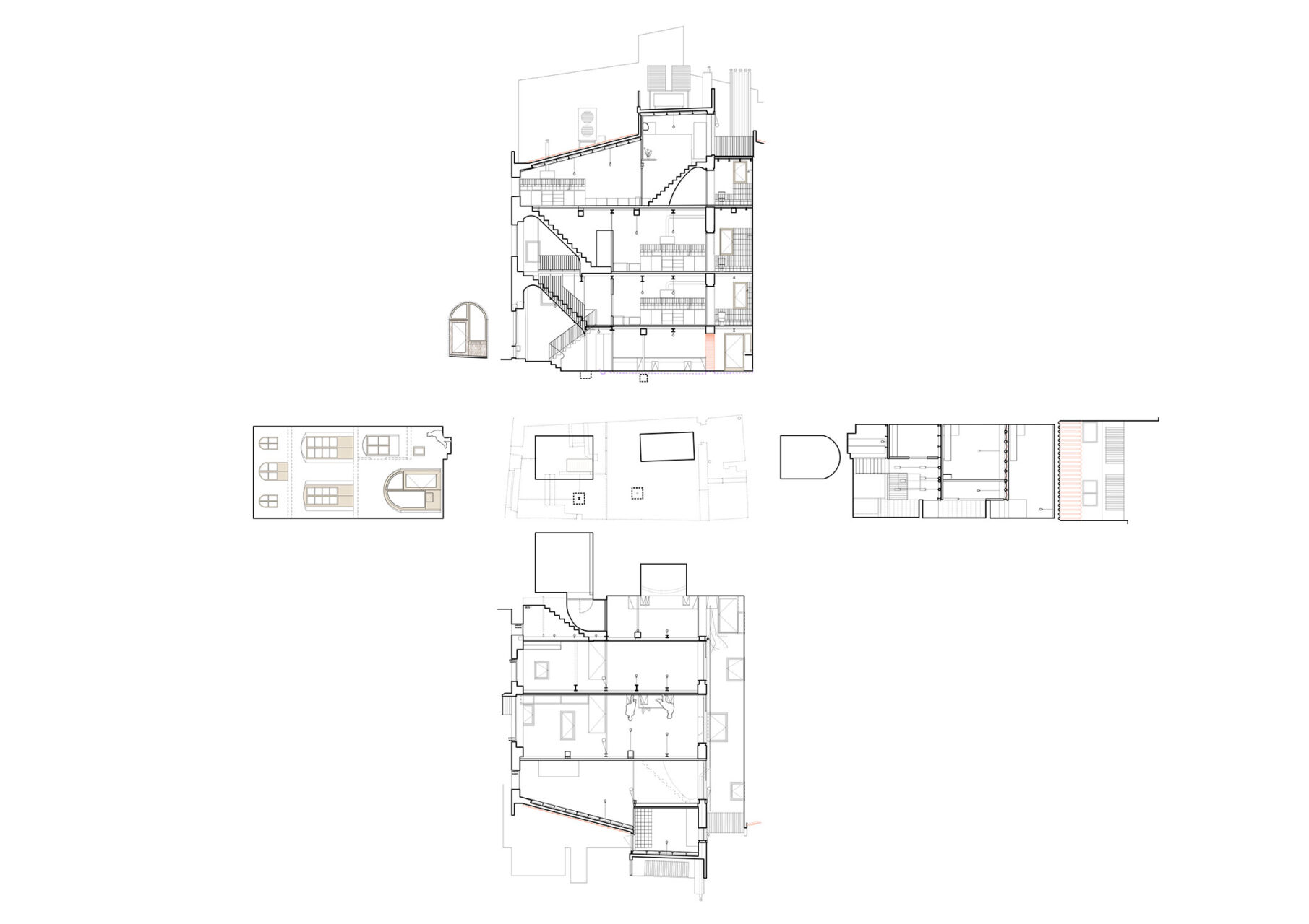
Mediona 13 és la rehabilitació d’una de les nombroses cases deshabitades del centre històric de Tarragona. La intervenció consisteix en modificar l’habitatge per a permetre que el seu ús sigui flexible fent arribar la llum natural a tots els seus espais, i intentat preservar al màxim la construcció existent.
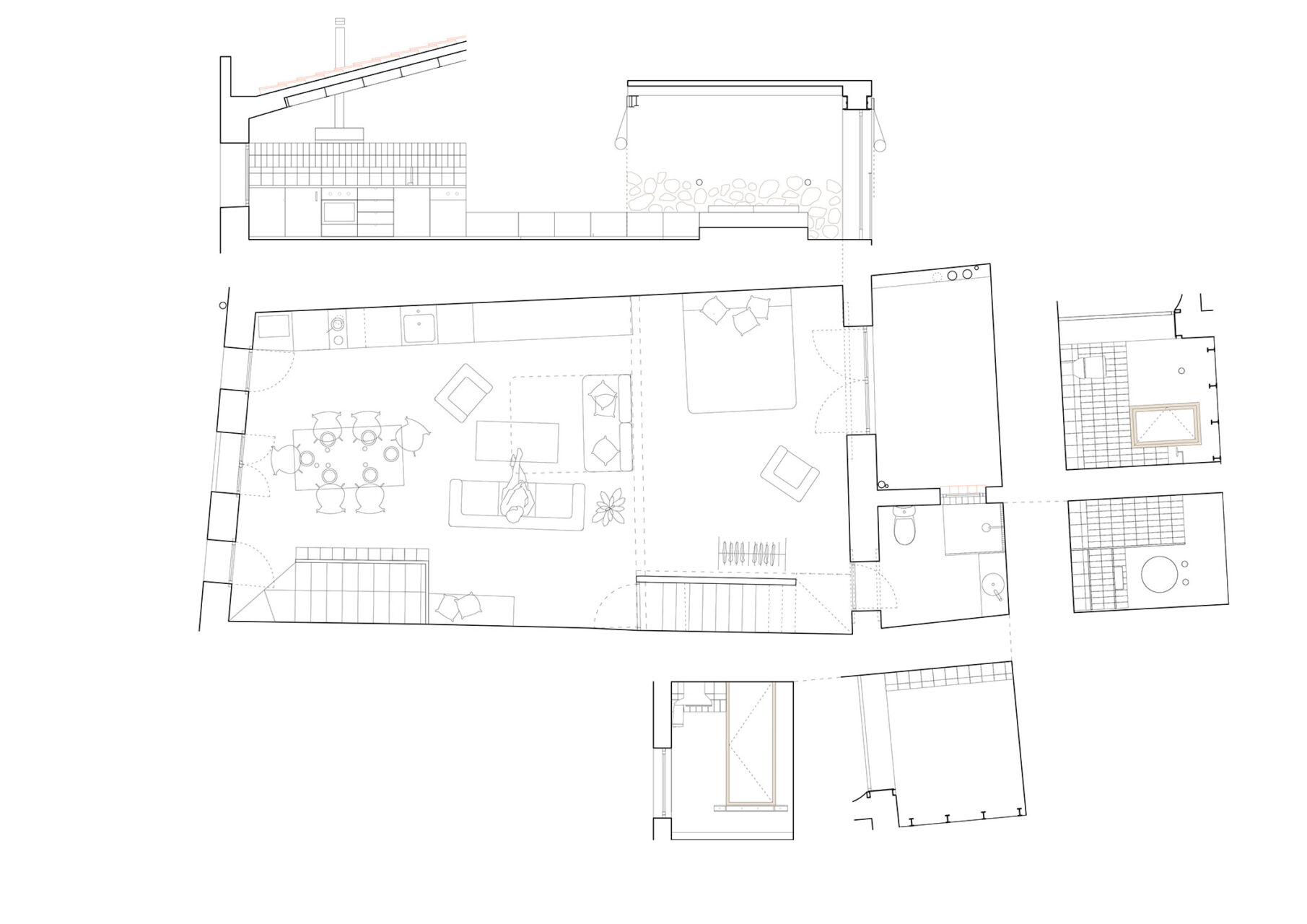
L’habitatge es pot entendre com 3 cases en 1: una casa entre mitgeres que pot acollir des de 3 petites unitats de convivència a una gran família. Cada planta correspon a una unitat íntima que conté espais per a cuinar i menjar, netejar-se i descansar. Una gran varietat d’obertures interiors possibiliten la permeabilitat entre l’espai íntim i el comú.
La nova porta d’accés permet que la llum viatgi pel cor de la casa, la plaça interior que rep als seus habitants. A l’altre extrem, el pati existent s’eixampla i s’hi obren noves finestres i balconeres.
L’estructura existent es reforça i l’escala i els murs es consoliden. A les mitgeres es descobreixen colors que son emprats en els nous elements estructurals. El blauet és el triat per a l’espai comú, un color tradicionalment emprat com a mesura higiènica i de protecció dels mals esperits.
Una altra manera d’habitar el casc antic de Tarragona