This house is designed for a landscape, culture and people. It is an open and elastic system, a self-sufficient and versatile structure capable to evolve according to the needs and experiences of his inhabitants.
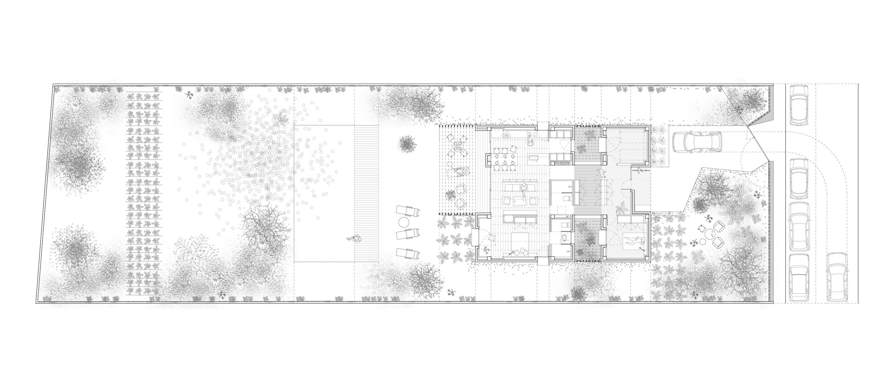
Botarell has an intimate relationship with the growing adjacent fields. Located at the foothill of Prades mountain range, the urban morphology of this town has very diffuse boundaries with the fields.
The organizational strategy of the dwelling arises from the reactivation of the geometrical structure, still present in the plots of farmland, designed as efficient systems of parallel bands. The project is conceived as a device born from an ancestral landscape sequence. Landscape as a designing tool.
The house is organized in flexible and functional bands that work according to intimacy gradients. It is shown introverted to the street and laterals, and opens completely to the south, in order to ensure natural light, establish a close relationship with the outside, minimize heat losses and protect the house from the strong wind of the north.
With the use of natural energy the dwelling attempts to minimize the consumption of energy resources, prioritizing basic strategies such as orientation, reuse of rainwater for watering the garden or ventilation flows.
A territory-related home, thought in a long term, versatile enough to absorb changes in family structure over the time.
year2010-2012
location: Botarell, Tarragona.
area: 148,18m²
budget: 132,437€.
architects: Arnau Tiñena, NUA arquitectures.
technical architect: Josep Anguera.
construction company: Construcciones Velarde MVC
photography: Jordi Ramos, Maria Rius, Arnau Tiñena.
awards: Premi en la categoria d’Habitatge Unifamiliar de la VIII Mostra d’Arquitectura del Camp de Tarragona.
Projecte Finalista del Concurs Internacional Next Landmark de Floornature 2013.