Una nova vida per a un edifici oblidat. Un projecte de reutilització i reciclatge que revisa el model habitacional turístic costaner proposant una reconnexió amb la història del lloc.
Des d'íbers i romans, el port natural de Salauris ha estat un lloc estratègic de la costa catalana des del punt de vista militar, comercial, i, finalment, des de la segona meitat del segle XX, turístic.
Vila essencialment pesquera al llarg de la història, Salou va començar a rebre els primers estiuejants ja al segle XIX gràcies a l'empenta de la nova burgesia industrial de Reus, transformant progressivament la vila pesquera en una petita ciutat-balneari. La construcció de diverses cases-hotel modernistes a primera línia de mar a principis del segle XX fou la llavor del desenvolupament turístic massiu posterior de la ciutat.
Seixanta anys més tard del boom turístic a Salou, com s'ha de plantejar avui un habitatge d'ús temporal i com el turisme ha de respondre als reptes socials i mediambientals que estem afrontant?
Fugint del model habitacional genèric i global orientat a les vacances d'estiu i generalitzat a partir de l'esclat turístic dels anys 60 a la Costa Daurada, els nous apartaments volen ser cases, espais domèstics càlids i arrelats a la cultura local que es puguin ocupar durant tot l'any i pensats per a poder ser usats com a habitatges permanents en un futur proper.
El nou projecte d'apartaments és la rehabilitació d'un edifici existent abandonat, i busca establir un diàleg amb aquests primers estiuejants i els seus palaus de principis del segle XX a nivell conceptual i material, proposant un model de vida alternatiu al turisme de masses: un model lent, proper i local, desestacionalitzat i arrelat a la tradició balneària i arquitectònica original del lloc.
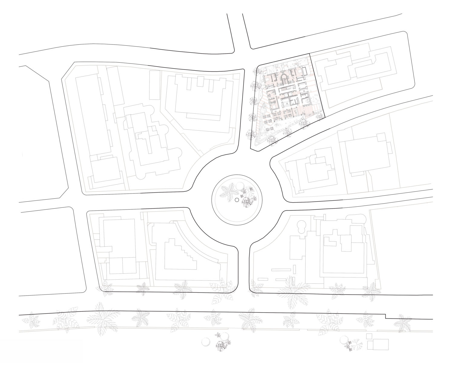
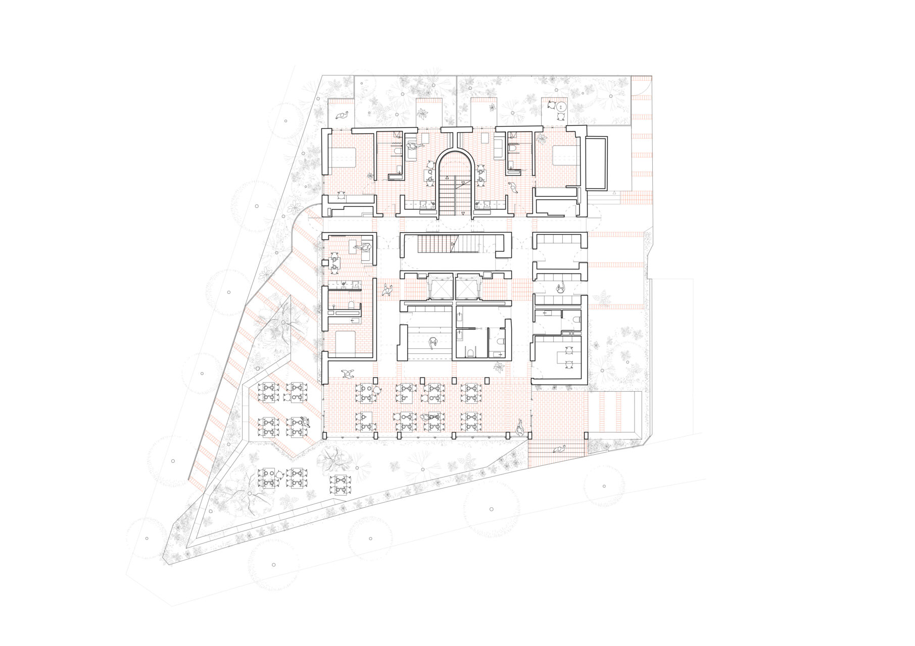
Transformació d'un edifici abandonat en 27 apartaments
any: 2020-2024.
situació: Salou, Tarragona.
superfície: 1670m².
arquitectes: NUA arquitectures.
arquitectura tècnica: Albert Vilà i Júlia Oriol.
col.laboradors: Alfons Güell, Paula Roch, Àngels Cañellas, Alba Azábal.